Here we live and now



2017


Together with Stav Dror

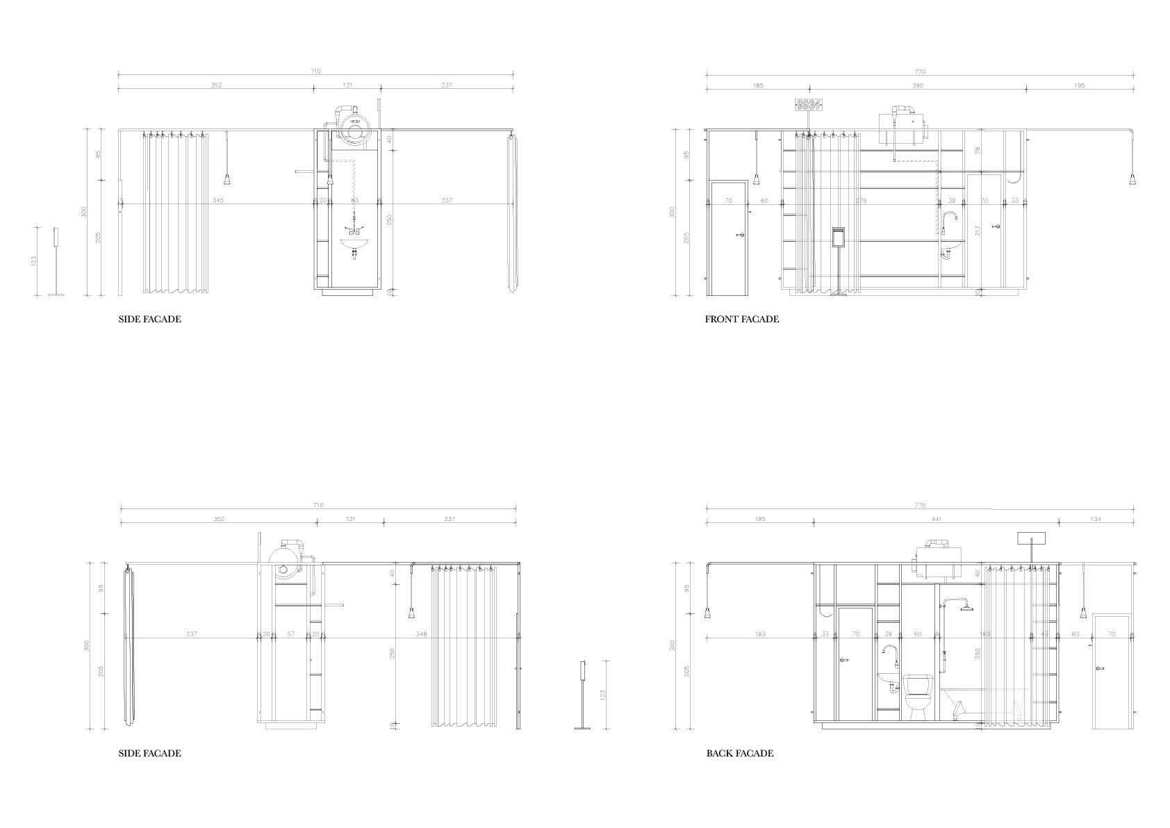
As home in the city becomes more and more expensive and unattainable and its value is estimated at 200-300 salaries it makes sense to think of the home as a ‘thing’ that can be bought or obtained. If once less was more, and then became a bore, now less is simply a fact. The reality of living in the city today forces us to rethink the potential of the ‘less’. A possible home was planned while questioning the presence of an individual at his home and the presence of home in the city. Considering constant movement and change as essential qualities of our daily lives, home is no longer a permanent container of objects but a composition of objects and an object on its own. As opposed to the modern home which is structured as an array of rooms the conventional hierarchy of domestic spaces and the traditional conception of the room was neglected as cooking, dinning, sleeping and taking a shower is rendered as a flux of daily activities. A series of lightweight, moveable frames, surfaces, curtains and joints can be assembled and disassembled in any vacant space in the city. Home becomes a collectible and its parts replaceable, one could buy his home parts.





Copyright ⓒ 2023
el.em studio  לירן מסר